REQUEST A TOUR If you would like to see this home without being there in person, select the "Virtual Tour" option and your agent will contact you to discuss available opportunities.
In-PersonVirtual Tour

$ 678,000
Est. payment /mo
Price Dropped by $46K
928 Katia ST The Nation, ON K0A 2M0
4 Beds
3 Baths
Open House
Sun Apr 26, 2:00pm - 4:00pm
UPDATED:
Key Details
Property Type Multi-Family
Sub Type Duplex
Listing Status Active
Purchase Type For Sale
Approx. Sqft 1100-1500
Subdivision 616 - Limoges
MLS Listing ID X12853756
Style Bungalow
Bedrooms 4
Tax Year 2025
Property Sub-Type Duplex
Property Description
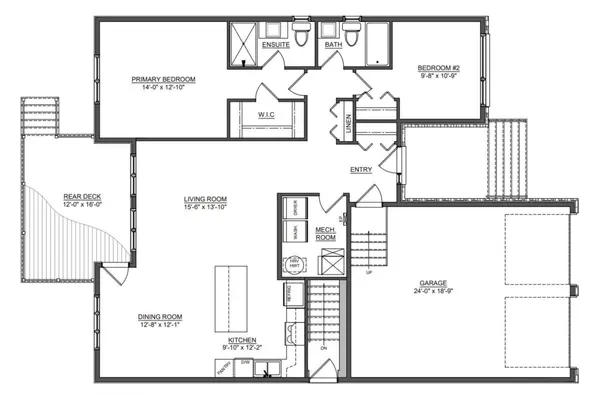
FULL HST REBATE INCLUDED IN LISTING PRICE! OPEN HOUSE Sunday April 26th 2:00pm - 4:00pm AT 63 Chateauguay Street, Embrun. Introducing the Audrey a sleek and stylish bungalow offering 1,315 square feet of thoughtfully designed main-level living. With 2 bedrooms and 2 full bathrooms, this home is ideal for those seeking one-level comfort without compromising on elegance or function. The open-concept layout creates a seamless flow between the living, dining, and kitchen areas, making everyday life and entertaining feel effortless. The primary suite is a true retreat, complete with its own private ensuite for added comfort and privacy. A spacious 2-car garage adds practicality, rounding out a design that's perfect for downsizers, first-time buyers, or those seeking a modern, low-maintenance lifestyle. Adding even more value and flexibility is the fully legal basement unit, featuring 2 bedrooms and a 4-piece bathroom perfect for rental income, extended family, or guests. Whether you're looking to invest or simply maximize your living options, the Audrey delivers. Constructed by Leclair Homes, a trusted family-owned builder known for exceeding Canadian Builders Standards. Specializing in custom homes, two-storeys, bungalows, semi-detached homes, and now offering fully legal secondary dwellings with rental potential in mind, Leclair Homes brings detail-driven craftsmanship and long-term value to every project.
Location
Province ON
County Prescott And Russell
Area Prescott And Russell
Zoning Residential
Rooms
Basement Full, Apartment
Kitchen 2
Interior
Interior Features Water Heater Owned, Accessory Apartment, In-Law Suite, In-Law Capability
Cooling None
Exterior
Parking Features Attached
Garage Spaces 2.0
Pool None
Roof Type Asphalt Shingle
Total Parking Spaces 6
Building
Building Age New
Foundation Concrete
Lited by LPT REALTY




